
Каркас
Еловый или кедровый профиль толщиной 42х92 мм, влажностью 10%
Основание под баню из поперечных лаг 50х150 мм с возможностью последующего утепления (в случае не использования проливных полов)
Пол из доски с возможностью замены
Основание под баню (деревянные ножки)
Внешняя обработка антисептиком в один слой (при поставке изделия в готовом виде или со сборкой на участке)
Кровля
Крыша из гибкой черепицы Döcke PIE или Технониколь до самого низа. Цвет коричневый
Печной узел
Дровяная печь Grill’D Bochky Short
Пожаробезопасное многослойное основание-сэндвич под печь из нержавеющей стали, минерита и базальтового картона
Защита от нагрева из минерита
Камни для печи (в подарок)
Дымоход
Дымоход в сборе
Проходной узел под дымоход из нержавеющей стали, термоизоляции, резинового уплотнителя с хомутом
Двери
Входная дверь деревянная 1640×605 мм с окном
Стеклянная тонированная дверь в парилку
Стеклянная тонированная дверь в моечное отделение
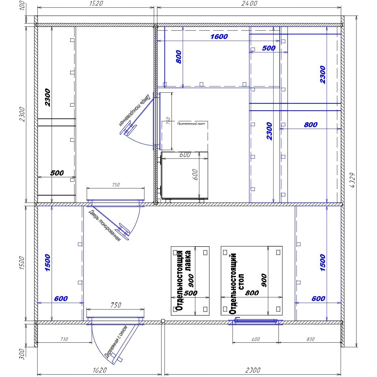
Парное отделение
Проливные полы на лагах с уклоном в сторону от печи из доски с возможностью замены
Четыре сливных отверстия в нижней точке, закрываемые клапанами. Отверстия между собой соединены фрезерованным в полу пазом глубиной 10 мм
Угловой полок из липы или осины
Трапик на пол из ели
Окно 300х400 мм
Светильник банный IP54
Комната отдыха/раздевалка
Проливные полы на лагах (возможен уклон) из доски с возможностью замены
Полки из липы или осины согласно схеме расположения
Трапик на пол из ели
Стол
Окно 600х600 мм
Светильник банный IP54
Розетка
Выключатель
Моечное отделение
Проливные полы на лагах с уклоном в сторону от печи из доски с возможностью замены
Два сливных отверстия в нижней точке, закрываемые клапанами. Отверстия между собой соединены фрезерованным в полу пазом глубиной 10 мм
Полки из липы или осины согласно схеме расположения
Трапик на пол из ели
Светильник банный IP54
УЗНАТЬ ДЕТАЛИ