
ркас
Еловый или кедровый профиль толщиной 42х92 мм, влажностью 10%
Основание под баню из поперечных лаг 50×150 мм с возможностью последующего утепления (в случае не использования проливных полов)
Пол из доски с возможностью замены
Внешняя обработка антисептиком в один слой (при поставке изделия в готовом виде или со сборкой на участке)
Кровля
Крыша из гибкой черепицы Döcke PIE или Технониколь до самого низа. Цвет коричневый
Печной узел
Дровяная печь Grill’D Bochky Short
Пожаробезопасное многослойное основание-сэндвич под печь из нержавеющей стали, минерита и базальтового картона
Защита от нагрева из минерита
Камни для печи (в подарок)
Дымоход
Дымоход в сборе
Проходной узел под дымоход из нержавеющей стали, термоизоляции, резинового уплотнителя с хомутом
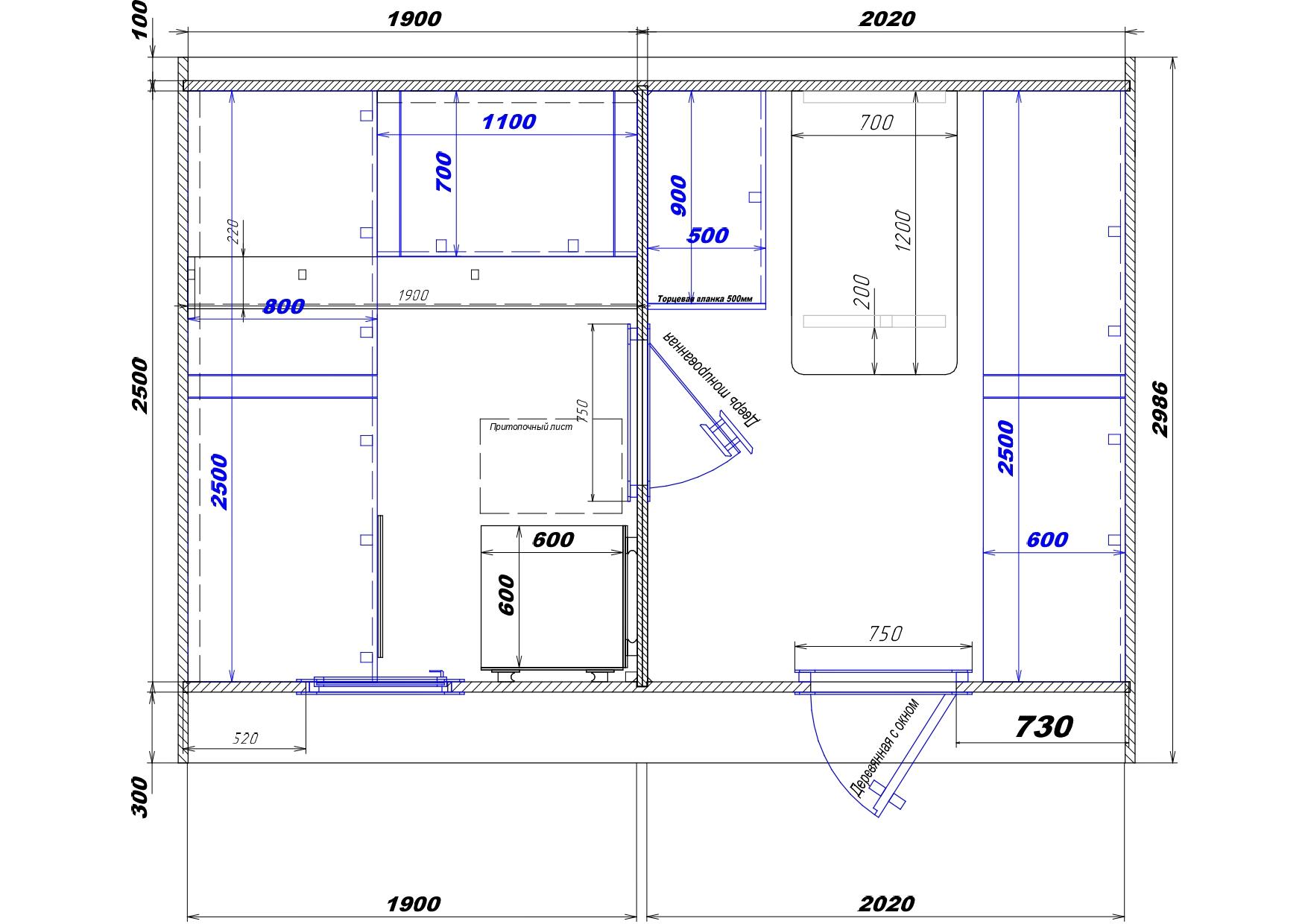
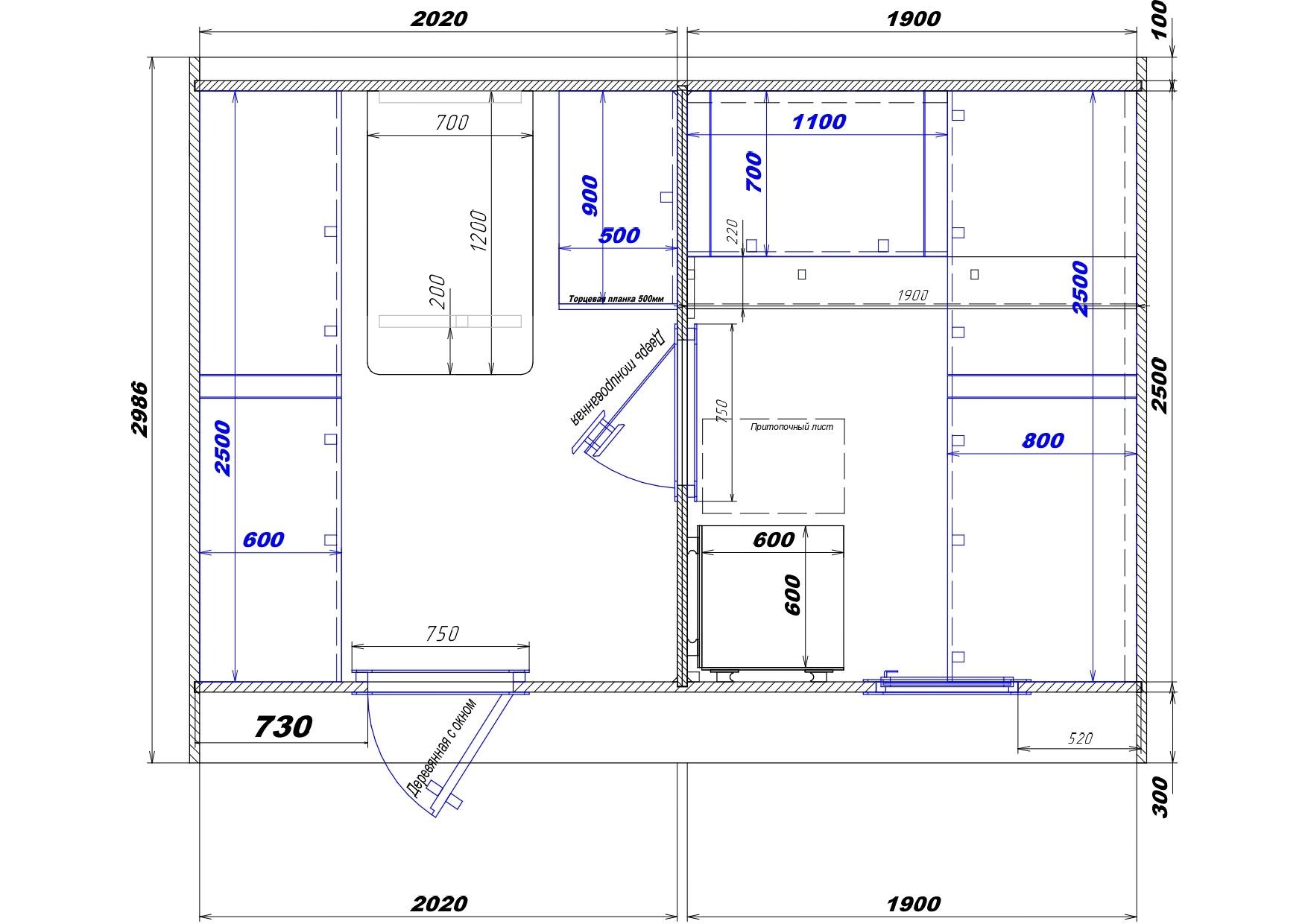
Двери
Входная дверь деревянная 1640×605 мм с окном
Стеклянная тонированная дверь в парилку
Парное отделение
Проливные полы на лагах с уклоном в сторону от печи из доски с возможностью замены
Четыре сливных отверстия в нижней точке, закрываемые клапанами. Отверстия между собой соединены фрезерованным в полу пазом глубиной 10 мм
Угловой полок из липы или осины
Трапики на пол из ели
Окно 600х600 мм (стеклопакет) с открыванием вовнутрь
Светильник банный IP54
Комната отдыха/раздевалка
Проливные полы на лагах (возможен уклон) из доски с возможностью замены
Два собранных полка из липы или осины
Трапики на пол из ели
Стол
Светильник банный IP54
Розетка
Выключатель
УЗНАТЬ ДЕТАЛИ